Construccion
En la Turbaco - Bolivar, construimos la segunda etapa del proyecto urbanístico llamado "Condominio Campestre Valle Dorado". Este desarrollo residencial está diseñado para brindar un entorno tranquilo y campestre a sus residentes. Nuestro objetivo es crear un espacio armonioso que combine la comodidad y la elegancia en un entorno natural. El Condominio Campestre Valle Dorado cuenta con modernas infraestructuras y servicios de primera calidad para satisfacer las necesidades de sus residentes. Estamos comprometidos en ofrecer viviendas de alta calidad y en asegurar el bienestar y la satisfacción de nuestros clientes. Como empresa constructora, nos enorgullece formar parte de este proyecto que busca mejorar la calidad de vida de las personas en la ciudad de Turbaco.


Estudios de cimentacion y estructuras ATC Colombia
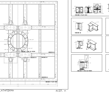
Se realizaron calas de cimentación y dictámenes estructurales de plataformas en los departamentos de Bolívar, Atlántico, Sucre y Córdoba para el proyecto ATC-VISION entre finales del 2021 y 2023. Estos trabajos consistieron en la evaluación de patología estructural, excavación, levantamiento arquitectónico y estructural de plataformas de torres, así como el diseño estructural y la valoración de las mismas. También se proporcionaron recomendaciones en cuanto a cimentación y se llevaron a cabo reparaciones en elementos estructurales dañados. Estas labores fueron ejecutadas con el objetivo de garantizar la seguridad y estabilidad de las plataformas y contribuir al éxito del proyecto ATC-VISION.


















PATOLOGIA Y REPARACIONES
EXCAVACION Y ESTUDIO DE CIMENTACION
CALAS DE CIMENTACION



LEVANTAMIENTO Y EVALUACION DE ESTRUCTURAS DE PLATAFORMAS
PATOLOGIA EN ESTRUCTURAS Y PAVIMENTOS
Se realizó el estudio de patología en estructuras y pavimentos, orientado a identificar las causas de deterioro, manifestaciones de daño y condiciones de servicio de las obras evaluadas. La actividad incluyó inspecciones en campo, levantamiento fotográfico y técnico, caracterización de fallas y análisis de posibles mecanismos de degradación, con el propósito de recomendar acciones de mantenimiento, rehabilitación o reparación según las necesidades detectadas.



Levantamiento estructura HCVA, planta Pharmachem, Freeport -Bahamas
Se realizó el levantamiento de la estructura del sistema HCVA en la planta Pharmachem, ubicada en Freeport, Bahamas. La actividad comprendió la inspección detallada de la infraestructura existente, así como el registro y documentación técnica de las condiciones en campo, con el fin de aportar insumos para la evaluación estructural y la planificación de intervenciones futuras.




ANÁLISIS EN ELEMENTOS FINITOS DE CIMENTACIONES
Revisión de diseños de cimentación superficial y profunda proyecto: Wharf & Fuel Tank Facility at Georgetown, Guyana.
Modelo de pilote sometido a carga lateral
Simulacion de talud sumergido sometido a cargas ciclicas
Simulacion murallas de Cartagena tramo claustro de la merced-restaurante la vitrola





TRABAJOS REALIZADOS A NOMBRE PROPIO
Revisión de diseños y recomendaciones geotécnicas obras de canalización en la ciudad de Valledupar
Diseño geotécnico de canal de aguas pluviales
Análisis de estabilidad de taludes
Análisis de caudal de aguas subterráneas
Supervisión enrocado muelles COMPAS
Empleado por Macconsultores SAS*
Interventoría cimentación harinas 3 castillos
Empleado por AICO LTDA*


